3 Bedroom Attached For Sale
Sheep Pen Lane, Steyning, BN44 3GP
Guide Price £800,000
  • Fascinating Grade II Listed house
  • Modern Kitchen and bathroom fittings
  • Sitting Room with inglenook fireplace
  • Three double bedrooms
  • Three shower rooms
  • Spacious conservatory
  • Central but peaceful location
  • Driveway with carport
  • Charming courtyard gardens
  • Gas fired central heating

Summary

Sheppenstrete House is attached to 25 High Street on its northern party wall and yet despite this central position it remains one of Steyning's secrets, tucked away in a surprisingly peaceful setting with secluded walled gardens.
This fascinating Grade II listed house is of ancient origin, with the original building dating back to the 17th Century.

The accommodation provides a comfortable and charming home with modern kitchen and sanitary fittings and gas-fired central heating to radiators. The house has been extended and adapted over the centuries and the accommodation flows well with the kitchen forming the hub of the house and the cosy period sitting room with its fine Inglenook fireplace is complemented by the modern conservatory addition overlooking the secluded west-facing terrace.

The attractive elevations are a blend of flint, brick and tile-hanging under a pitched and tiled roof with mostly double-glazed windows. A private blockwork driveway provides ample off-street parking and leads to the carport with pedestrian gate to the main garden and the approach to the house. There is an entrance hall with access to the kitchen and utility room with sink and space for appliances and modern cloakroom off and access to the courtyards. The reception rooms lead from the inner hall with its period staircase and there are steps back up to the modern fitted kitchen and doors beyond to the spacious conservatory.

On the first floor there is a charming main suite with exposed timbering and en-suite shower room, and a further double bedroom and shower room as well as a French door to a small balcony enjoying roof-top views with the Downland skyline beyond. The third bedroom also accommodates a double bed and there is another separate family shower room.

The gardens enjoy seclusion, contained by walling and arranged for ease of maintenance with a large Indian stone terrace adjoining the western elevation and a variety of raised beds with mellow brick pathways. There is a further patio to the side of the house, ideal for outside dining, and a brick-built outside store with power connected, ideal as a garden store or perhaps a small studio.

Location

On the south-west side of Steyning's historic High Street with its beautiful range of domestic and part-commercial architecture providing shops for day-to-day needs and Post Office. Primary and secondary schools are within walking distance, as are many social and recreational facilities, including leisure centre with swimming pool, and tennis courts, as well as modern health centre. Nearby Charlton Street gives access to the cricket field and beyond to the South Downs and miles of open country.

Steyning lies at the foot of the South Downs National Park, about five miles from the coast at Shoreham-by-Sea (mainline railway station to London Victoria) and eight miles from Worthing. Brighton is about 11 miles and Horsham 14, and Gatwick Airport can normally be reached in about 40 minutes by car.

Floors/rooms

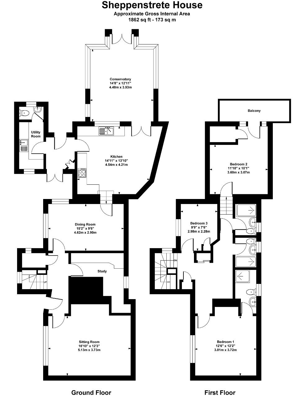
Ground Floor

Sitting Room - 16'10" x 12'3" (5.13m x 3.73m)

Dining Room - 15'2" x 9'6" (4.62m x 2.90m)

Kitchen - 14'11" x 13'10" (4.54m x 4.21m)

Conservatory - 14'8" x 12'11" (4.48m x 3.93m)

Utility Room -

Study -

Cloakroom -

First Floor

Bedroom 1 - 12'6" x 12'2" (3.81m x 3.72m)

Bedroom 2 - 11'10" x 10'1" (3.60m x 3.07m)

Bedroom 3 - 9'9" x 7'6" (2.98m x 2.28m)

Three Shower Rooms -

Exterior

Services and Council Tax - Services: All main services are connected.
Council Tax Valuation Band: 'E'.

Carport and Driveway -

Courtyard Gardens - Secluded, walled courtyard.

Brick Built Outside Store - With power connected.

Important Note - 1. Any description or information given should not be relied upon as a statement or representation of fact or that the property or its services are in good condition.
2. Measurements, distances and aspects where quoted are approximate.
3. Any reference to alterations to, or use of any part of the property is not a statement that any necessary planning, building regulations or other consent has been obtained.
4. The Vendor does not make or give, and neither Hamilton Graham nor any person in their employment has any authority to make or give any representation or warranty whatsoever in relation to this property.
5. All statements contained in these particulars as to this property are made without responsibility on the part of Hamilton Graham.
6. The property is Grade II listed as being of architectural or historic interest.
Intending purchasers must satisfy themselves on these matters.

Additional Information

For further information on this property please call 01903 879212 or e-mail sales@hamiltongraham.co.uk

Interested in this property?

01903 879212

sales@hamiltongraham.co.uk

Request a viewing

Share this property:

Rightmove ZooplaOnthemarket OmbudsmanTSISafe Agent