2 Bedroom Terraced For Sale
Charlton Street, Steyning, BN44 3LE
£335,000
Under Offer
  • Attractive terraced cottage
  • Situated in the centre of the town
  • Backing onto open green space
  • Downland views
  • Fully refurbished
  • Wood-burning stove in the sitting room
  • Kitchen with integrated appliances
  • Two bedrooms
  • Gas-fired central heating

Summary

An attractive terraced cottage with brick elevations under a pitched and slated roof with fully refurbished original sash windows. Lovingly restored in recent years, in keeping with the era of construction, the cottage provides comfortable accommodation with high quality decoration and an abundance of character throughout. There is a charming sitting room with wood-burning stove, kitchen with space for a table and cosy cottage bedrooms. There is gas-fired central heating to radiators. A particular feature is the direct access to the open green space of the Memorial Playing Fields with views of the Downs beyond.

Location

The cottage garden overlooks open green space including the cricket field with the scenic backdrop of the ridge of the South Downs. Charlton Street contains a variety of attractive and individual homes and runs roughly parallel to the High Street of Steyning within the Conservation Area of the town. The cottage is within a stone's throw of the heart of the town with its good range of individual shops and Post Office. The cricket field behind gives direct access to wonderful open walking country. Local facilities include tennis courts, a leisure centre with swimming pool and a good variety of clubs and societies.

Approximate Distances: Steyning is about 5 miles from the coast at Shoreham-by-Sea (mainline railway station), 8 miles from Worthing and 12 miles from Brighton. Horsham is about 14 miles to the north and Crawley and Gatwick Airport are normally about 40 minutes' drive.

Floors/rooms

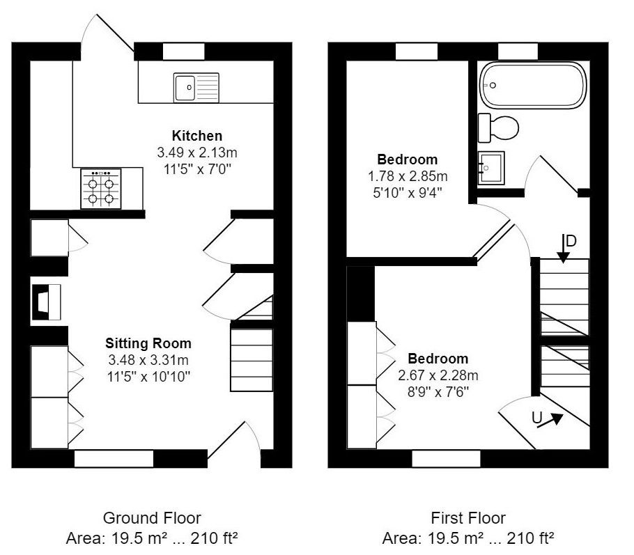
Ground Floor

Sitting Room - Original front door to Sitting Room: 11'5" x 10'10" (3.48m x 3.31m) Spanish slate flooring (Fired Earth). Fireplace with quarry hearth and fitted wood-burning stove. Bespoke fitted cupboards to side with oak shelf and storage cupboards over. Further storage cupboard with original pine door. Traditional style column radiator. Recessed ceiling lighting. Understairs storage cupboard. Wide opening to kitchen/breakfast room.

Kitchen/Breakfast Room - 11'5" x 7' (3.49m x 2.13m) Space for breakfast/dining table. Window and door overlooking and opening to the rear garden. Attractive tiled flooring. Good selection of work surfaces with inset deep enamel sink unit. Four-ring gas hob with oven beneath and filter hood over. Range of cupboards and drawers. Integrated refrigerator, washing machine and dishwasher. Matching wall units. Cupboard housing gas-fired boiler providing hot water and central heating. Recessed ceiling lighting. Radiator.

First Floor

Landing - From the sitting room, oak staircase to the first floor and small landing.

Bedroom 1 - 8'9" x 7'5" (2.67m x 2.28m) Overlooking Charlton Street. Traditional style handcrafted double wardrobe (recessed). Radiator. Exposed floorboards. Access to loft storage.

Bedroom 2 - 9'4" x 5'10" (2.85m x 1.78m) Exposed floorboards. Views over the rear garden and the Memorial Playing Fields with the Downland skyline beyond. Custom-made wood-framed windows (double glazed).

Bathroom - Cottage suite of roll-top bath on claw feet, pedestal washbasin and low-level WC. Custom-made wood-framed window (double glazed) overlooking the garden, with timber shutters. Attractive tiled flooring. Column radiator incorporating chromium towel rail. Electric wall heater.

Exterior

Garden - Rear garden contained by fencing; to lawn with mature apple tree and stocked border. To the far boundary is a flint wall with gate providing direct access to the cricket field and small terrace providing an ideal observation point. Timber garden shed.
There is a pathway skirting the rear of the cottage which is subject to a right-of-way for the neighbouring cottages.

Services and Council Tax - Services: All main services are connected.
Council Tax Valuation Band: 'C'

Important Note - 1. Any description or information given should not be relied upon as a statement or representation of fact or that the property or its services are in good condition.
2. Measurements, distances and aspects where quoted are approximate.
3. Any reference to alterations to, or use of any part of the property is not a statement that any necessary planning, building regulations or other consent has been obtained.
4. The Vendor does not make or give, and neither Hamilton Graham nor any person in their employment has any authority to make or give any representation or warranty whatsoever in relation to this property.
5. All statements contained in these particulars as to this property are made without responsibility on the part of Hamilton Graham.
Intending purchasers must satisfy themselves on these matters.

Additional Information

For further information on this property please call 01903 879212 or e-mail enquiries@hamiltongraham.co.uk

EPC Graph

Interested in this property?

01903 879212

enquiries@hamiltongraham.co.uk

Request a viewing

Share this property:

Rightmove ZooplaOnthemarket OmbudsmanTSISafe Agent