3 Bedroom Detached For Sale
Twittenside, Penfold Way, Steyning, BN44 3TW
£725,000
Under Offer
  • Just a few minutes' walk to the High St.
  • Triple aspect spacious living room
  • Conservatory
  • Three double bedrooms
  • Family bathroom and en-suite shower
  • West-facing enclosed rear garden
  • Integral garage
  • No ongoing chain

Summary

An attractive detached house, one of three built in 2001, with tile-hung and part flint elevations and double-glazed windows under a pitched and tiled roof. This well-designed house has a spacious living room overlooking the secluded rear garden and there are three double bedrooms on the first floor with some glimpses of the South Downs. This is an efficient, well-insulated home with gas-fired central heating and photovoltaic cells providing a useful income. No ongoing chain.

Location

Twittenside is at the end of a cul-de-sac but as the name implies there is a pedestrian route via Dog Lane to the High Street of this old market town. The picturesque town centre has shops for all daily requirements and there are schools for all ages, Post Office, leisure centre with indoor swimming pool, and modern health centre. Steyning lies in the lee of the South Downs National Park which provide miles of lovely walking country.

Approximate Distances: The mainline railway station at Shoreham-by-Sea is about five miles away and the coastal towns of Worthing and Brighton are eight and 12 miles respectively. Horsham, Crawley and Gatwick can normally be reached in under 40 minutes by car.

Floors/rooms

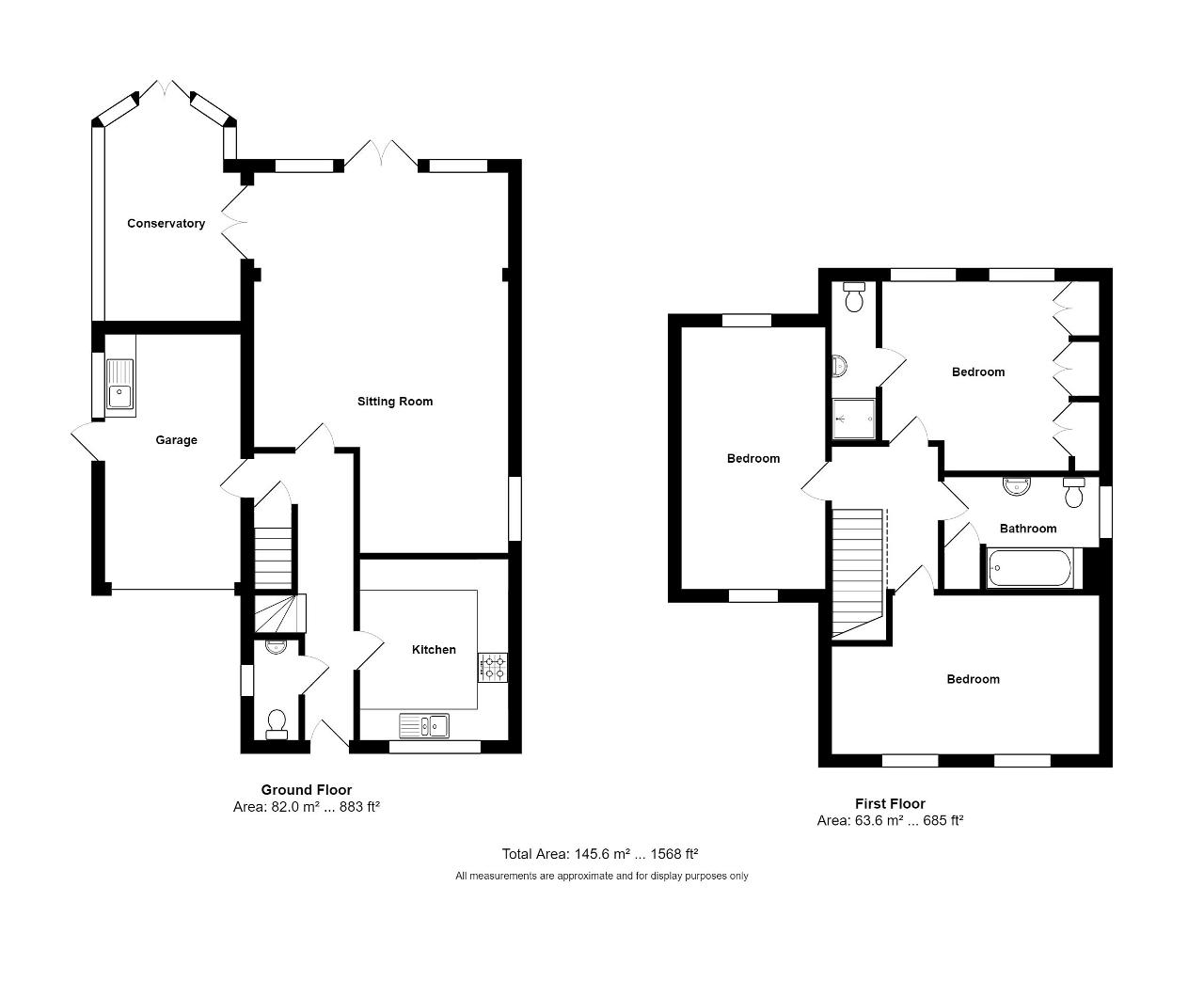
Ground Floor

Covered Porch - Front door with glazed panels to entrance hall.

Entrance Hall - Under-stairs storage cupboard. Radiator. Door to integral garage.

Cloakroom - Tiled floor. WC and washbasin. Radiator.

Kitchen - 11'8" x 9'6" (3.56m x 2.90m) Modern fittings with marble-effect Formica work surfaces and laminate-faced units. Tall unit housing oven with storage above and deep pan drawers beneath. One and a half bowl stainless steel sink unit with mixer tap and cupboards beneath. Integrated dishwasher. Zanussi four-ring gas hob with concealed filter hood over, and cutlery and deep pan drawers beneath. Further cupboards and drawers and matching wall units. Recess for refrigerator. Tiled flooring. Radiator. Recessed ceiling lighting.

Open-Plan Living Space - Sitting Area: 17'7" x 16'4" (5.36m x 4.98m).
Dining Corner: 9'6" x 7' (2.9m x 2.12m). Triple aspect with French doors and side windows opening to the rear garden. Radiator. Pair of ten-panel glazed doors opening to the conservatory.

Conservatory - 14'7" x 8'5" (4.46m x 2.58m) Of PVCu construction with French doors to the garden.

From the entrance hall stairs lead to the first floor.

First Floor

Galleried Landing - Loft access.

Bedroom 1 - 12'11" x 12' (3.70m x 3.65m) Pair of windows with fine views of the South Downs. Wall to wall recessed wardrobe cupboards. Radiator. Access to part-boarded loft area with fitted ladder. Door to en-suite shower room.

En-suite Shower Room - Tiled shower cubicle with glazed door. WC. Pedestal washbasin. Vertical towel rail/radiator. Light and shaver point.

Bedroom 2 - 17'3" x 10'2" (5.26m x 3.11m) Radiator.

Bedroom 3 - 16'10" x 9'3" (5.14m x 2.82m) Double aspect with Downland views. Radiator.

Family Bathroom - White suite of panelled bath in tiled recess with shower fitting over, pedestal wash basin, WC. Vertical radiator incorporating towel rail. Light and shaver point. Recessed ceiling lighting. Linen cupboard with slatted shelving. Radiator.

Exterior

Integral Garage - 16' x 8'9" (4.88m x 2.67m) Electrically-operated roller door. Side door. PVCu window. Formica worktop with inset single-drainer sink unit. Space and plumbing for washing machine. Wall-mounted Vaillant gas-fired boiler providing hot water and central heating.

Front Garden - Blockwork pavers providing hardstanding. Small lawned area. Outside lighting. Gated side access to rear garden.

Rear Garden - West facing and enclosed by fencing. Wide paved terrace adjoining the rear of the house with steps up to further garden area beyond. Timber garden shed.

Services and Council Tax - Services: All main services are connected.
Council Tax Valuation Band: 'E'.

Important Note - 1. Any description or information given should not be relied upon as a statement or representation of fact or that the property or its services are in good condition.
2. Measurements, distances and aspects where quoted are approximate.
3. Any reference to alterations to, or use of any part of the property is not a statement that any necessary planning, building regulations or other consent has been obtained.
4. The Vendor does not make or give, and neither Hamilton Graham nor any person in their employment has any authority to make or give any representation or warranty whatsoever in relation to this property.
5. All statements contained in these particulars as to this property are made without responsibility on the part of Hamilton Graham.
Intending purchasers must satisfy themselves on these matters.

Additional Information

For further information on this property please call 01903 879212 or e-mail enquiries@hamiltongraham.co.uk

EPC Graph

Interested in this property?

01903 879212

enquiries@hamiltongraham.co.uk

Request a viewing

Share this property:

Rightmove ZooplaOnthemarket OmbudsmanTSISafe Agent