2 Bedroom Terraced For Sale
Sparrows Cottages, off Rectory Lane, Ashington, RH20 3LL
Guide Price £475,000
  • An attractive period cottage
  • In a beautiful setting
  • Period features
  • Exposed timbering and cottage doors
  • Sitting room with wood-burning stove
  • Cottage kitchen with French doors
  • Two bedrooms
  • Single garage
  • Parking bay for two vehicles

Summary

An attractive period cottage in a small terrace of character homes in this beautiful setting. Elevations are brick with timber casement windows under a pitched and tiled roof. There are gardens to the front and rear. Stepping inside, period features include exposed timbering, cottage doors and sitting room with fitted wood-burning stove. The cottage has been well-maintained and there is oil-fired central heating to radiators.

Location

The cottage is approached over a private track a short walk from local facilities including shops, a Post Office and general store, a primary school, and local public house. The nearby A24 provides easy access to the major towns of Horsham to the north, and Worthing on the South coast (both approximately 10 miles distant), which together provide excellent facilities.

Floors/rooms

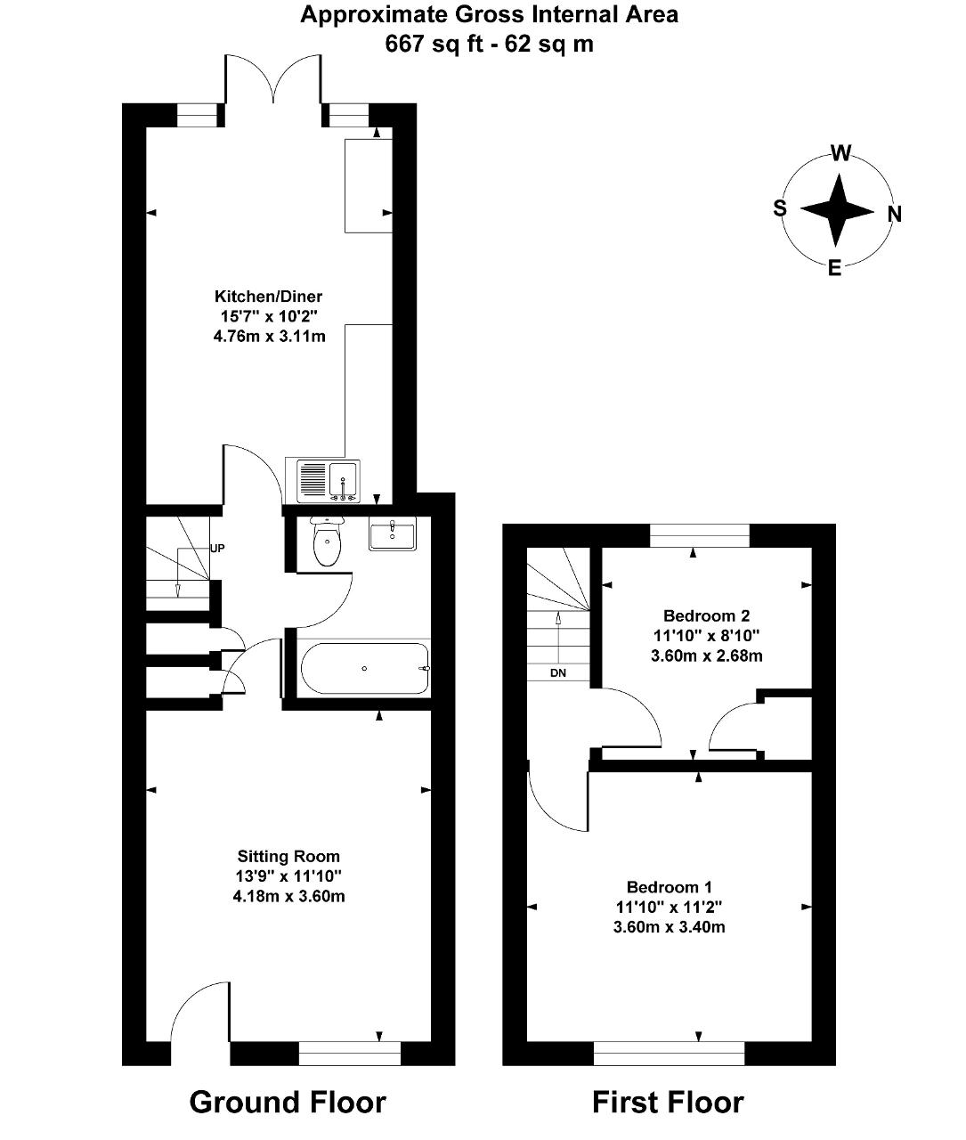
Ground Floor

Storm Porch - Front door to storm porch: Timber and glazed door to sitting room.

Sitting Room - 13'9"x 11'10" (4.18m x 3.60m) Exposed honey-coloured ceiling timbers. Attractive fireplace with timber mantel, brick hearth and fitted wood-burning stove, with oak shelving to either side. Two double radiators. Secondary glazing to windows.

Kitchen/Diner - 15'7" x 10'2" (4.76m x 3.11m) French doors and windows overlooking and opening to the garden. Attractive cottage kitchen with exposed ceiling timbers and feature chimney breast with space for range cooker. Ample space for breakfast table. Selection of Formica worktops with inset sink unit. Space for appliances. Cupboards and drawers. Double radiator.

Inner Hall - Understairs storage cupboards.

Bathroom - White suite of panelled bath with mixer tap and shower attachment, traditional pedestal washbasin and low-level WC. Radiator. Dimplex wall heater. Extractor fan. Chromium towel rail.

From the inner hall, stairs lead to the first floor.

First Floor

Landing - Loft access.

Bedroom 1 - 11'10" x 11'2" (3.60m x 3.40m) Overlooking the front garden. Recess with hanging rail and shelving. Overhead mezzanine storage platform. Double radiator.

Bedroom 2 - 11'10" x 8'10" (3.60m x 2.68m) Wardrobe cupboard with hanging rail. Radiator.

Exterior

Single Garage - Semi-detached with up-and-over door. Power connected.

Front Garden - Gravelled parking bay providing parking for two vehicles. Pedestrian gate to east-facing front garden contained by fence and shrubbery with gravelled finish for ease of maintenance.

Rear Garden - Contained by fencing. Paved section adjoining the rear of the property. Oil-fired boiler providing hot water and central heating. Outside tap. Pedestrian gate to further area of garden with artificial lawn and maturing fruit trees. Timber Garden Shed/Workshop: 12'9" x 5'11" (3.9m x 1.8m) with stable door and power and light connected.

Services and Council Tax - Services: All main services are connected.
Council Tax Valuation Band: 'D'

Important Note - 1. Any description or information given should not be relied upon as a statement or representation of fact or that the property or its services are in good condition.
2. Measurements, distances and aspects where quoted are approximate.
3. Any reference to alterations to, or use of any part of the property is not a statement that any necessary planning, building regulations or other consent has been obtained.
4. The Vendor does not make or give, and neither Hamilton Graham nor any person in their employment has any authority to make or give any representation or warranty whatsoever in relation to this property.
5. All statements contained in these particulars as to this property are made without responsibility on the part of Hamilton Graham.
Intending purchasers must satisfy themselves on these matters.

Additional Information

For further information on this property please call 01903 879212 or e-mail sales@hamiltongraham.co.uk

EPC Graph

Interested in this property?

01903 879212

sales@hamiltongraham.co.uk

Request a viewing

Share this property:

Rightmove ZooplaOnthemarket OmbudsmanTSISafe Agent